HOME ABOUT TWA BIO
ALLEN DESIGNS
Consulting Structural Engineers

27201 Puerta Real #300
Mission Viejo, CA 92691
(949) 248-8588
Bill@AllenDesigns.com

Specializing in the structural engineering of wood framed structures with the objective of producing clear and concise structural plans and details saving time and money at the jobsite. Specifically, over the past 15 years, Allen Designs has focused on residential remodeling, a sometimes difficult, but rewarding niche market.


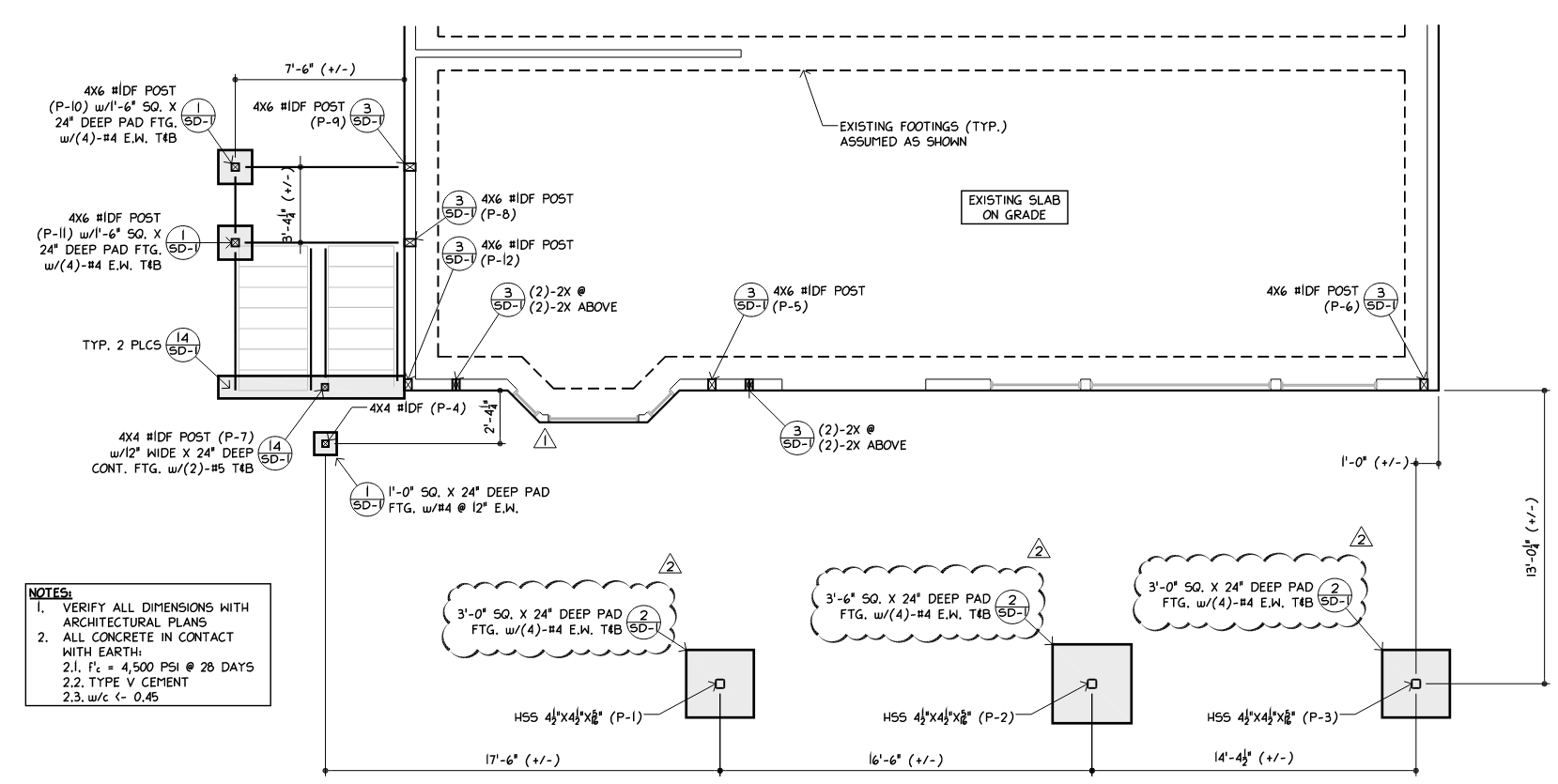
Lallas Residence, Dana Point, CA

Partial Foundation Plan
Partial Foundation Plan
Deck Framing Plan
Deck Framing Plan